Plant Design
Biomass Fired Thermal Power Plant- Design & Engineering of Piping and Structure
The scope of work included the detailed design of the turbine island and
balance of plant. This encompassed the development of 3D models of
equipment, structural design, piping and support design, stress analysis,
STAAD-based structural analysis, and the preparation of piping and
structural construction drawings.
Project Definition
The scope of work included the detailed design of the turbine island and balance of plant. This encompassed the development of 3D models of equipment, structural design, piping and support design, stress analysis, STAAD-based structural analysis, and the preparation of piping and structural construction drawings.
Description
The project was executed within Hexagon’s CADWorx 3D multidisciplinary design environment. Structural steel engineering was carried out using STAAD Pro, and piping stress analysis was performed using Caesar II. Construction isometric drawings were generated through Isogen, and special pipe support details were developed using 2D CAD tools.
Key Deliverables
• 3D Model covering:
• Piping
• Pipe supports
• Steel structures
• Electrical & Instrumentation (E&I) cable trays
• Instrumentation
• Issued-for-Construction (IFC) drawings for:
• Steel structures
• Piping isometrics
• Pipe supports
• Piping Material Take-Off (MTO)
• Electrical and Instrument cable tray layout
• Structural analysis report
• Pipe stress analysis report
Value Proposition
Through well-established design and execution processes, the project was delivered efficiently and to a high standard. Our team’s extensive experience and deep domain knowledge ensured a “right-first-time” design approach, enabling us to meet technical requirements and deliver the project on schedule.

Project Definition
The scope of works for this project covers the design and engineering of TEG Packages-Qty x 2. These TEG packages were designed to be supplied as a self-contained, skid mounted arrangement.
Description
In accordance with the project specifications, the TEG packages were designed and engineered using a 3D multidisciplinary design environment. The PDMS platform was employed to integrate various engineering disciplines seamlessly. Structural steel engineering was conducted using STAAD Pro, while piping stress analysis was performed using Caesar II. Construction isometric drawings were generated with Isogen, and specialized pipe support details were developed using 2D CAD.
Key Deliverables
- 3DModelincluding:
- Piping
- Pipesupports
- Structural steel
- Issued-for-Construction (IFC) drawings for:
- Steelstructure
- Pipingisometrics
- Structural steel
- Cabletray layout
- Foundation drawings, including lifting and transportation details
- Structural analysis report
- Pipestress analysis report
Value Proposition
Leveraging well-established engineering processes and extensive industry expertise, the project was executed to meet all customer requirements effectively. Our team’s knowledge and experience ensured a first-time-right design approach, resulting in the successful and timely delivery of the project.

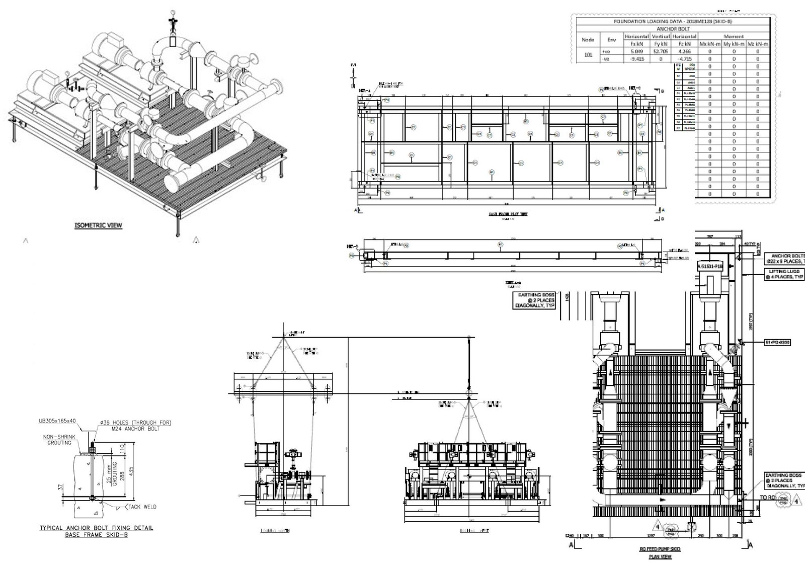
Centrifugal Pump Skid- Multi discipline design and engineering
Project Definition
This project encompasses the multidisciplinary design and engineering of a
centrifugal pump skid. The scope included 3D modeling of equipment,
piping, structural components, electrical & instrumentation (E&I) cable trays,
and instrumentation to optimize the skid footprint. Additionally, the scope
covered structural engineering and comprehensive piping stress analysis to
ensure safety and reliability.
Description
The skid was designed and engineered within a 3D environment using
CADWorx. Structural steel engineering was conducted using STAAD Pro,
while piping stress analysis was performed with Caesar II. Construction
isometric drawings were generated using Isogen, and detailed pipe support
designs were developed for specialized pipe support types using 2D CAD.
Key Deliverables
- Pipe stress analysis report
- Detailed design drawings for pipe supports and procurement
datasheets - Structural analysis report
- 3D model including piping, pipe supports, structural components, E&I
cable trays, and instruments - Issued-for-Construction (IFC) drawings for steel structures, piping
isometrics, and pipe supports - Cable tray layout
- Foundation, lifting, and transportation drawings

Waste Water Treatment Plant- Multi discipline design and engineering
engineering of a Waste Water Treatment Plant. This included 3D modeling of
equipment, piping, structural components, electrical & instrumentation (E&I) cable
trays, and instrumentation. The scope also encompassed structural engineering and
comprehensive piping stress analysis.
Project Definition
The scope of work for this project involved the multidisciplinary design and
engineering of a Waste Water Treatment Plant. This included 3D modeling
of equipment, piping, structural components, electrical & instrumentation
(E&I) cable trays, and instrumentation. The scope also encompassed
structural engineering and comprehensive piping stress analysis.
Description
The plant was designed in a 3D environment using AVEVA PDMS.
Structural engineering was carried out using STAAD Pro, and piping stress
analysis was performed with CAESAR II. Construction isometric drawings
were generated using Isogen. Detailed structural and pipe support designs
were developed for specialized pipe support types using 2D CAD.
Key Deliverables
- Construction drawings for structures, foundations.
- Piping Isometrics and Pipe stress analysis
- Detail design drawings for Pipe supports and datasheets for procurement
- Structural analysis report
- 3D model including Piping, Pipe supports, structure, E&I cable trays and
instruments - Cable tray layout.
- Foundation, lifting, and transportation drawings
Value Proposition
RNi7 experience in designing large scale project and well establish procedures ensured the project is delivered with in planned budget and on schedule

Project Definition
The scope of work for this project covers the multidisciplinary design and engineering of a Gas Booster Station. This involved 3D modeling of equipment, piping, structural components, E&I cable trays, and instrumentation.
Description
The skid was designed and engineered in a 3D environment using CADWorx. Structural steel engineering was performed using STAAD Pro, while piping stress analysis was conducted using Caesar II. All construction isometric drawings were generated using Isogen. Pipe support details were developed for specialized pipe support types using 2D CAD.
Key Deliverables
- Pipe stress analysis report
- Detail design drawings for Pipe supports and datasheets for procurement
- Structural analysis report
- 3D model including Piping, Pipe supports, structure, E&I cable trays and instruments
- IFC drawings for Streel structure, Piping Isometrics, Pipe supports,
- Cable tray layout.
- Foundation drawings, Lifting and transportation drawings
Value Proposition
Project completed on time and with in budget


Tank Farm Area- Piping and Structure Detail Design
Project Definition
RNi7 was commissioned by a leading construction company to deliver a comprehensive detailed design for a complex Oil Tank Farm project. The scope included piping and support system design, encompassing pipe rack structures and multiple critical services such as process fluids, vapor recovery, and fire water systems
Description
The design was executed within a sophisticated 3D environment using Plant 3D. Structural steel engineering was meticulously performed using STAAD Pro, while piping stress analysis was completed with AutoPipe to ensure compliance with industry standards and operational safety. Construction isometrics were generated using Isogen, and specialized pipe support details were developed with INVENTOR, addressing unique support requirements.
Key Deliverables
- Comprehensive pipe stress analysis report, guaranteeing system reliability
- Detailed design drawings for pipe supports with procurement-ready datasheets
- Structural analysis report confirming design integrity
- Coordinated 3D model integrating piping, pipe supports, structural elements, E&I cable trays, and instrumentation
- Issued-for-Construction (IFC) drawings for steel structure, piping isometrics, and pipe supports
- Optimizedcable tray layouts for efficient installation
- Foundation, lifting, and transportation drawings to support seamless project execution
Value Proposition
With our deep industry expertise and robust engineering processes, RNi7 ensured the project was delivered on schedule and within budget, providing reliable, high-quality designs that meet the complex demands of oil storage facilities.
Metering Skid Design- Piping and Structure Design & Engineering
Project Definition
Aleading equipment supplier entrusted RNi7 with the detailed design and engineering of structural and piping systems for a Gas Metering Station skid on the Cross Country Pipeline Project. The design posed significant challenges due to the region’s high seismic intensity, requiring stringent compliance with advanced seismic design criteria.
Description
The project was successfully executed using AVEVA E3D for advanced 3D modeling and detailed design. Structural steel design endorsements and connection calculations were rigorously completed using TEKLA, ensuring robustness and safety under seismic conditions.
Key Deliverables
- Fully detailed 3D model of the metering skid, including structure, piping, and supports
- Comprehensive fabrication drawings incorporating all critical connection details
- Accurate Bill of Quantities to support procurement and budgeting
- Detailed design report featuring lifting and transportation analysis to ensure safe handling
- Piping isometrics and pipe support designs optimized for functionality and compliance
Value Proposition
RNi7’s expertise in advanced modeling and seismic design enabled the delivery of a highly complex project that met stringent safety and quality standards, completed on time and within budget. Our collaborative approach and technical rigor ensured client confidence and operational reliability.




